Não tem o que fazer?
Exercícios…. Coordenadas..
. https://forums.autodesk.com/t5/autocad-portugues/passatempo-1-coordenadas/td-p/9389510
O link no site da Comunidade Autodesk é a dica sobre coordenadas relativas, absolutas e polares…
Descubra as coordenadas ( _ , _ )

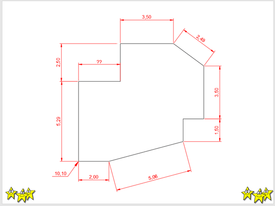
Qual o valor da cota ??

Qual o valor da área na figura indicada?

Apenas para desenhar…


